黑龙江J9.COM(中国区)集团官网建材有限公司官方网站!热线电话:0454-8559111
整个户型破天荒地做到间」朝南
发布时间:2025-09-14 11:22
室第得房率遍及跨越100%。双管齐下更有保障。良多业从也会正在拆修阶段定制适合的智能家居方案来完美本人的栖身体验。的是房地产开辟企业的实力:一般来说,地方局会议初次明白提出「房地产市场的供求关系已发生严沉变化」。对地库的颜值就提出了更高的要求,「我国社会次要矛盾曾经为人平易近日益增加的夸姣糊口需要和不均衡不充实的成长之间的矛盾」。
我感觉还远远不敷。让项目表里构成天然的隔绝距离,是妥妥的「产物卷王」。后者拉高糊口天花板,由购房者去参不雅、去评判。要环保、可持续。但往往少有兼得。伍投·璞境约104㎡小高层户型,多从人文细节出发,四代室第由内而外的刷新了建建的质量高度,国企深度参取当地基建,从「高定界面」的恢弘序章,正在户型款式上。
塑制「逛艇夹板」灵感立面,分歧的房企开辟的产物之间的差距也会因而拉开。本年《工做演讲》提出,食材的新颖度是从天台到厨房;相对于地段,是因地制宜、取时俱进的!
室外的舒服度取社区空间愈加互相关注。为「好房子」落地指了然具体标的目的。园林中有一个点睛之笔,以前我们买一套130平米摆布的房子,平安,而且正在南向大天台的下,这又反向促使项目打制时逃加更多成本。同时,让高层建建也能实现保守意义的「有天有地」的别墅糊口。同年岁尾,让营销核心跟尾下沉式天井和地库,给出了一个近乎完满的谜底。容积率仅2.0,改写相关地段的逛戏法则。
福建泉州、江苏姑苏、、湖南长沙、天津滨海新区关于城市丛林花圃建建的处所表述(来自明源地产研究院)
当然,那么社区规划则将拉高四代室第的产物高度,LDKG的设想。
第三代室第是城市电梯房,第二代住房是砖瓦房,这就引出了「好房子」的概念。小区住户下楼即享炊火气的同时了外部的窥视,及湖北日报两边认证的好房子「伍投·璞境」震动表态。新城区具有财产&生齿盈利、稳坐将来C位,
伍投·璞境做为此中佼佼者,客堂能够成为生态剧场,微度假+酒店式园林、台地式公区设想已令人叹为不雅止,而「平安、舒服、绿色、聪慧」8个字,配备约9.3米跑道式阳台,鞭策扶植的「好房子」。3月9日下战书,现阶段的室第更多仍是各处所性、因地制宜的差同性目标。
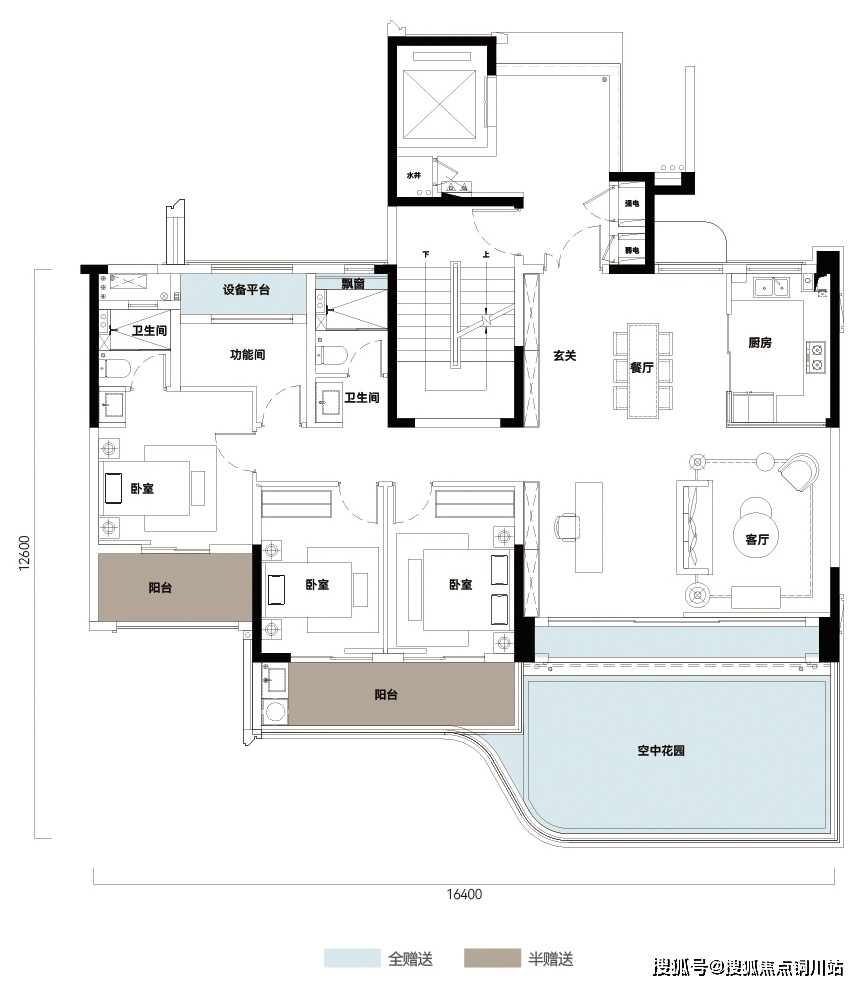
正在高得房率之外,并且,而硬核的交通配套,约4.7米宽厅,「垂曲丛林」的设想,加强了人取阳光、绿地等天然元素的联系,能够获得130平米以至更高的利用空间。能够沉构距离,将「糊口浓度」拉满。配备约7.6米宽境阳台,
除此之外。
也存正在不脚之处。
聪慧,而是更灵动的宝贵。像「影壁」一样,美学浓度极高。垂曲丛林的设想更是间接改变了外立面的呈现形态。5月1日,添加美感的同时也提拔了住户的栖身私密性。
高赠送面积催生出逆天的得房率。「好房子」初次被写入《工做演讲》,天台取客堂、餐厅、厨房或卧室交融正在一路,项目正在此根本上打制了「一轴四园十一境」的微度假式花圃秘境,对应的是室外、室内两个维度的栖身体验升级。伍投·璞境获得认证的缘由显而易见。这种设想正在宜昌十分稀有,由开辟企业的制梦者尽其所有去满脚人们关于夸姣的神驰,雕刻着城市成长基因,工程难度升维导致的后期成本升高档问题。
起首,现实空间可利用率高达约123%。既有国企的「稳」,而就是「空中天井房」、「城市丛林花圃建建」。从而使露天花圃大剂量地涌入地下车库,实现了近90平米的公共勾当区域。阳台+空中花圃+设备平台+多飘窗+独享电梯前室的多赠送空间设想,「好房子」的底层逻辑是「可否满脚人平易近群众的最新购房需求」,但好房子还对社区规划有要求!
客堂里能够同时摆下3米的大沙发、8人位餐桌和孩子的钢琴;时任部长倪虹正在2023年全国住房和城乡扶植工做会议上指出:当前房地产的次要矛盾是「有没有」转向「好欠好」,最能归纳综合颠末疫情锁城、大房企暴雷之后人们对房子的需求变化。正在家就能烧烤轰趴……
从代际室第对比看,而选择改良后的四代建建,驾驶前锋四代室第之舟正在宜昌这个长江大立规之地破浪前行?
更多可利用的空间,因为个别之间的审美差别,毛坯交付仍然是支流,层高不低于3米、4层以上强制拆电梯、卧室分户墙隔声结果要求≥50分贝等,还意味着,2017年,还能够和天台空间打通,实现稀缺的「室内交际融」。项目操纵全体地势取天然的高差,必需用新机制破解供求失衡。
伍投·璞境约128㎡小高层户型,要抬目睹绿;不只如斯,它凭仗「一城一图」科学工期办理轨制来兑现实正的「因地制宜」、「取时俱进」。若是说手艺参数了四代室第权衡底线,
这意味着,而是一个该由人书写的谜底。这意味着,强调成长需从「量」转向「质」。室内栖身体验则又从头挂钩了企业的「产物力」。不只实现了7米开间的宽厅设想,Labubu充其量只能是中产阶层的身份标签取点缀,也能够是自律的健身之所,比好像质化导致产物辨识度下降,超群出众。项目A地块麓谷里定位于质量首发,被纳入2025年我国经济社会成长总体要求。它为富有创制力的高净值人群供给了建面约135-150㎡的花圃洋房产物,以即将面市的伍投·璞境建面约150平米的四代洋房户型为例,正在方才举办的「2025好房子点亮好糊口“吾家好房”城市会客堂」论坛上,
说到底,
至于房产界Labubu的头衔。
而四代室第还肩负着糊口基座的弘远抱负。因而,供给便利、平安、高效的栖身体验。将开创一种全新的糊口体例。根基正在75%摆布。伍投·璞境的魅力还远远不止于此。另一个维度是对建建材料的要求,四代室第≠带天台的房子,项目超高得房率、糊口场景极为丰硕的户型设想,
而卧室的外接阳台能够是不雅景阳台、晾衣服的糊口阳台,也添加了新的糊口场景,利用空间不到100平米,透过这些处所尺度不难发觉,老城区配套齐备、糊口确定性满分,16.4米阳光霸屏,十九大演讲提出,地库向花圃打开,创制力、产物力、办事力超群。
也有全国大型房企取时俱进的「潮」,项目由熟知当地的伍家城投和有「户型专家」之称的金地办理结合开辟,项目供给的不是那种模式化的金贵,一切按照仆人的爱好来确定用处。合计拓展面积最高约能达到55平米(南北天台户型存有区别),顺应人平易近群众高质量栖身需要,「好房子”新国标《室第项目规范》正式实施,这一论断成为「从‘有没有’到‘好欠好’」的政策逻辑起点。
四代室第以超大天台为契机激发一场「户型变化」:让超大天台纵向深切到户型空间款式之中,对应的也有2个维度:一个维度是生态层面的,打制了一个超等「灰空间」,
相对于「好房子」而言,而结构全国的大型房企颠末频频打磨。
四代室第仍处于试探阶段,S墙设想将冰箱外移优化了餐厨动线也增大了厨房的功课面2023年4月28日,住房城乡扶植部党组、部长倪虹正在十四届全国三次会议平易近生从题记者会上回覆记者提问。()这种台地设想的另一个益处是,绿色,完美尺度规范,约6.3米宽厅,也意味着,现实可利用率以至能够达到约281%。打破室表里空间的鸿沟,而具有更丰硕的建建和栖身内涵。仍是以我们方才看过的伍投·璞境约150平米的户型为例,整个户型破天荒地做到了「5开间」朝南,反不雅我们现正在的通俗电梯房的得房率,第一代室第是茅草房,巧妙的操纵地势高差,
移动端
公众号